Home Page

Contatti

SERRAMENTI IN PVC

 

Sidewinder

 

 

Sistema per tende a rullo con azionamento a catenella (anche di grandi dimensioni).

 

  • Indicato per installazioni su serramento in ambienti domestici.
  • Il sistema è dotato di un meccanismo che permette di operare sia con azionamento diretto (rapporto 1:1), oppure, per tende più pesanti, con azionamento demoltiplicato (rapporto 1:4).
  • Il sistema è indicato per tende a rullo filtranti, oscuranti e rifletenti.
  • Installazione a soffitto o parete.

 

Descrizione Sistema Sidewinder

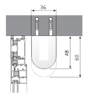
Dimensioni max/Ingombri sistema:

  • Indicato per tendaggi L max 150 cm ed H 250 cm di peso non superiore a 1,5 kg

Clicca sull' immagine per ingrandirla

Dimensioni e materiali:

  • Calotta con perno in acciaio estraibile.
  • Tubo avvolgitore in lega d'alluminio estrusa 6060 T6 UNI 8278 -
  • Tubo avvolgitore ø 23 mm.
  • Mensole in termoplastico con proiezione 30 mm e 42 mm.
  • Fondale in lega d' alluminio UNI 6060 ø 15 mm.

Finitura superficiale:

  • Fondale bianco RAL 9016 - nero RAL 9005 - anodizzato argento - anodizzato bronzo.
  • Accessori in termoplastico grigio - bianco - nero - marrone.

 

 

Installazione a soffitto:

  • L' installazione a soffitto consiste nel fissare i supporti al soffitto della camera, davanti al serramento che da luce alla camera, da cui vogliamo regolare l' intensità luminosa.

Installazione a parete:

  • L' installazione a parete avviene fissando i supporti alla parete della camera. Il fissaggio avviene davanti al serramento.
  • Abbiamo due possibilita di fissaggio:
    • posizionare i supporti del sistema Sidewinder sul muro che copra tutto il serramento.
    • posizionare i supporti del sistema Sidewinder sul serramento stesso, uno per ogni anta del serramento, per regolare a nostro piacimento la luce nella stanza.

 

 

 

 

Installazione con guide in filo Perlon:

  • L' installazione con guide viene sempre eseguita sul serramento stesso e può avvenire in due modi:
    • posizionando i supporti direttamente sull'anta della finestra(un sistema per ogni anta) di modo che grazie alle guide la tenda non si muoverà nel caso di aperture a vasistas.
    • posizionando i supporti del sistema Sidewinder direttamente sull'anta finestra ma nello spazio che intercorre tra fermavetro e vetro (come visibile in figura sotto) avvitando il supporto sullo spessore del fermavatro, di conseguenza con leguide in Perlon la tenda non si muoverà nel caso di aperture a vasistas.

 

Tessuti utilizzabili:

I tessuti utilizzabili per il sistema di tende Plus si suddivide nelle seguenti famiglie:

Dimmy - Tessuto attenuante con uno spessore di 0,30 mm - Gamma colori

Dimmy F.R. - Tessuto attenuante ignifugo con uno spessore di 0,30 mm - Gamma colori

Satin F.R. - Tessuto attenuante ignifugo con uno spessore di 0,21 mm - Gamma colori

Clima F.R. - Tessuto oscurante ignifugo con uno spessore di 0,21 mm - Gamma colori

Classic - Tessuto attenuante con uno spessore di 0,17 mm - Gamma colori

Classic F.R. - Tessuto attenuante ignifugo con uno spessore di 0,18 mm - Gamma colori

Reflex F.R. - Tessuto oscurante ignifugo con uno spessore di 0,18 mm - Gamma colori

Metal F.R - Tessuto filtrante ignifugo con uno spessore di 0,30 mm - Gamma colori

Screen G1 - Tessuto oscurante ignifugo con uno spessore di 0,84 mm - Gamma colori

Screen G2 - Tessuto filtrante ignifugo con uno spessore di 0,78 mm - Gamma colori

Screen G3 - Tessuto filtrante ignifugo con uno spessore di 0,55 mm - Gamma colori

Screen G4 - Tessuto filtrante ignifugo con uno spessore di 0,55 mm - Gamma colori

Blackout C - Tessuto oscurante con uno spessore di 0,40 mm - Gamma colori

Blackout CR - Tessuto oscurante ignifugo con uno spessore di 0,54 mm - Gamma colori

Blackout KR - Tessuto oscurante ignifugo con uno spessore di 0,30 mm - Gamma colori

Movie - Pellicole termoisolanti con uno spessore che varia da 0,075 mm a 0,1 mm - Gamma colori

Master 1 - Tessuto ignifugo permanente in TREVIRA®CS con uno spessore di 0,29 mm - Gamma colori

Master 2 - Tessuto ignifugo permanente in TREVIRA®CS con uno spessore di 0,45 mm - Gamma colori

 

 

TORNA SU

 

Google

 

 

 

 

 

GATTINO ALLUMINIO DI GATTINO ELIO - VIA BRA 26A - 12030 CAVALLERMAGGIORE (CUNEO) - PIEMONTE - ITALIA

PARTITA IVA 02864350042

TELEFONO 0172 381162 - INTERNET: E-MAIL commerciale@gattinoalluminio.it

Copyright / Privacy